Skip to main content

The Acorn

Two bed mid & end terraced or semi-detached.

Two bed semi-detached

The aesthetically pleasing Acorn benefits from a high specification kitchen and spacious living/dining area - with double doors to the garden. First floor comprises of a spacious master suite with ensuite, a further bedroom and family bathroom. Parking – Two allocated spaces.

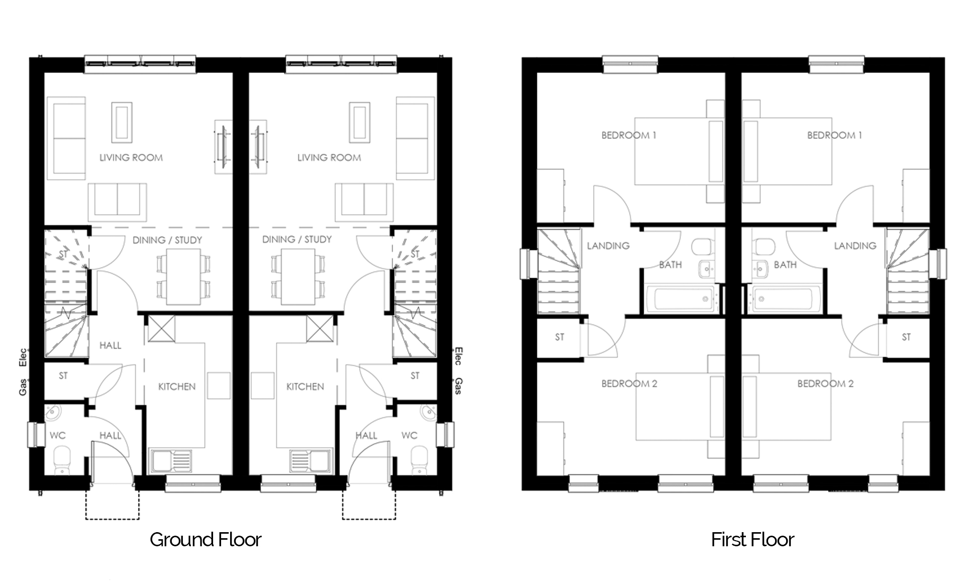
Floor plans

Floor Plans / Dimensions

Ground Floor

Kitchen/Living/Dining 3.112m x 7.323m

Cloak Room 0.90m x 1.650m

First Floor

Bedroom 1 4.100m x 2.588m

Bedroom 2 4.100m x 2.559m

Family Bathroom 1.847m x 2.000m