Skip to main content

The Beech

Three bed detached

Three bed detached

Benefiting from a spacious layout, each Beech home features a large combined kitchen/living/dining area enabling a flow of natural light. Further accentuating the space available the living room enjoys double doors out the garden. On the first floor you will find a master suite with ensuite, two further sizeable bedrooms and family bathroom.* Parking – Single separate garage and two spaces

Floor plans

Floor Plans / Dimensions

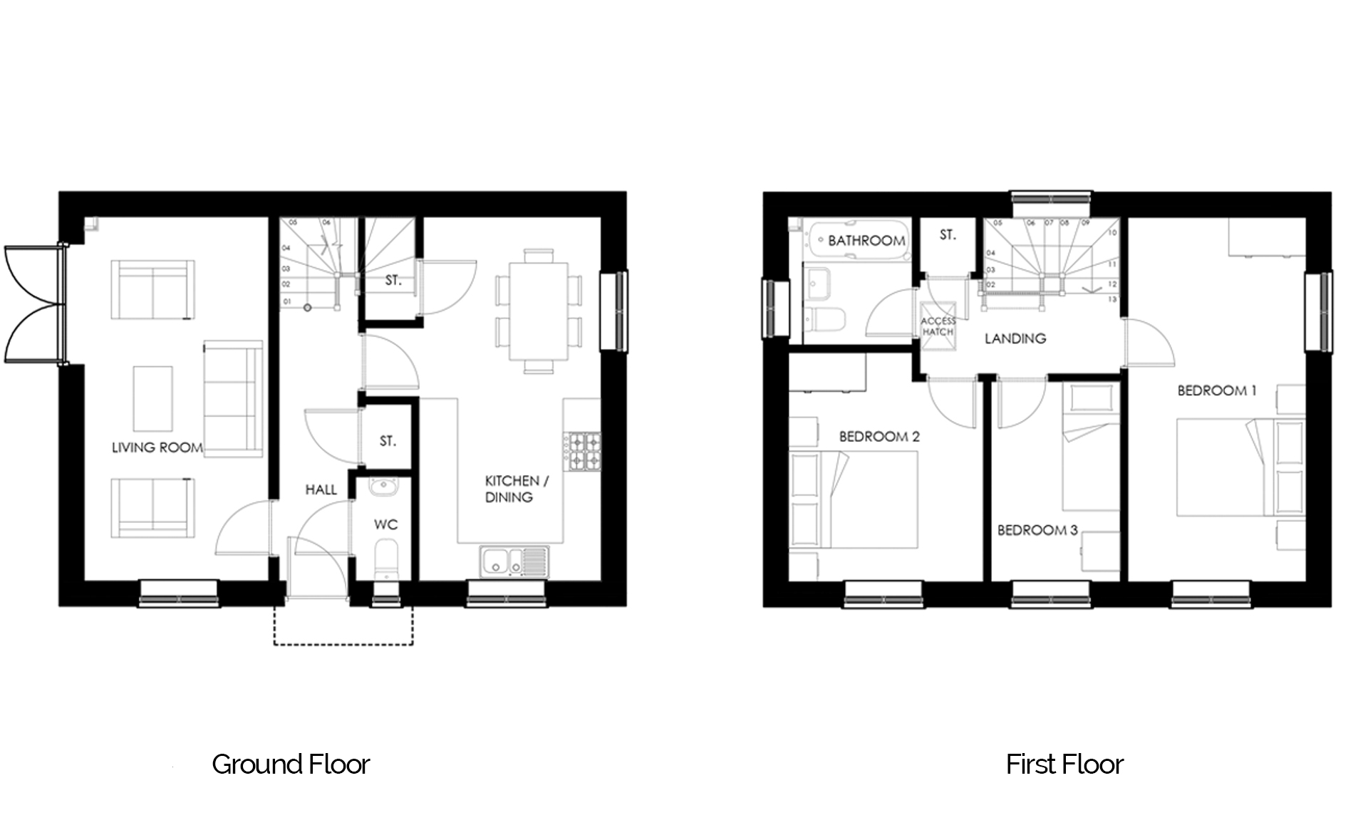
Ground Floor

Living Room 2.950m x 5.635m

Kitchen/Dining 2.884m x 5.635m

Cloak Room 0.866m x 1.634m

First Floor

Bedroom 1 2.921m x 5.635m

Bedroom 2 3.397m x 3.639m

Bedroom 3 1.987m x 3.039m

Family Bathroom 2.019m x 1.908m