Skip to main content

The Croft

One bed maisonette

One bed maisonette

The opportunity to own your first ‘starter home’ – a freehold maisonette comprising of living/kitchen/dining room, bedroom and bathroom. A high quality specification which includes oversized windows and self-contained gardens. Parking – One space with Electric Charging Point

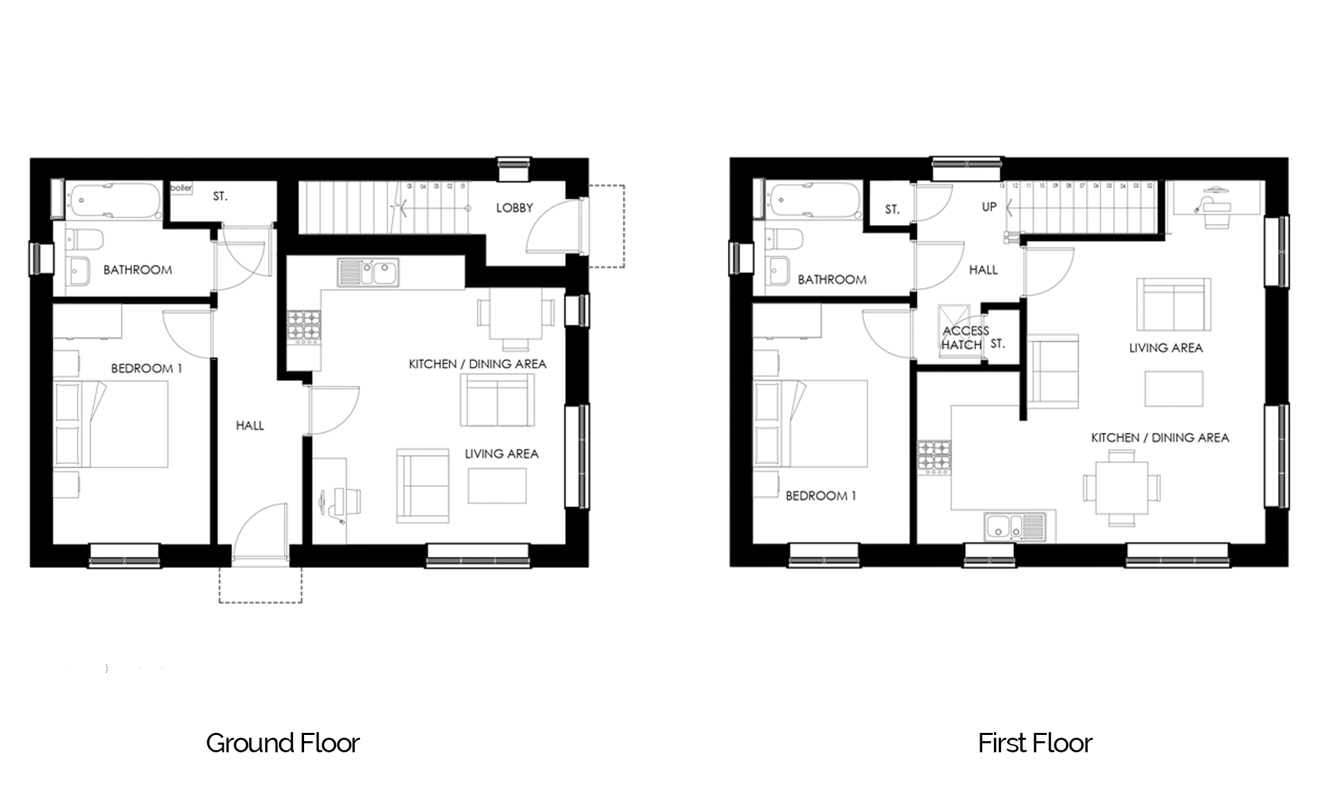
Floor plans

Floor Plans / Dimensions

Ground Floor

Living/Dining/Kitchen 4.537m x 4.454m

Bathroom 2.797m x 2.051m

Bedroom 1 2.797m x 4.171m

First Floor

Living/Dining/Kitchen 4.787m x 6.310m

Bathroom 2.797m x 2.051m

Bedroom 1 4.135m x 4.171m